Jurimex
Bochtlaan 32A
3600
Genk
België
T.089 308 700
E.info@jurimex.be
Genk, Weg Naar As 220 bus 12: Nieuwbouw duplexappartement met 2 slaapkamers, terras, fietsenstalling en een autostaanplaats. € 940
Nieuw
Weg Naar As 220 bus 12, 3600 Genk
Ref: 1723 - Weg naar As 220 bus 12
Genk, Weg Naar As 220 bus 12: Nieuwbouw duplexappartement met 2 slaapkamers, terras, fietsenstalling en een autostaanplaats.
Bent u op zoek naar een comfortabele, instapklaar duplexappartement met moderne voorzieningen?
Dit appartement combineert hedendaags wooncomfort met energiezuinige technieken en een praktische ligging.
Indeling:
Verdieping 1:
Verdieping 2:
Troeven:
Interesse? Neem contact op met Jurimex via het nummer 089/308 700 of info@jurimex.be voor een bezoek.
Bent u op zoek naar een comfortabele, instapklaar duplexappartement met moderne voorzieningen?
Dit appartement combineert hedendaags wooncomfort met energiezuinige technieken en een praktische ligging.
Indeling:
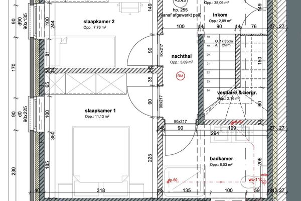
Verdieping 1:
- Inkom
- Badkamer
- Slaapkamer 1
- Slaapkamer 2
Verdieping 2:
- Trap
- Toilet
- Aangename woonkamer met veel lichtinval
- Volledig uitgeruste keuken met inductiekookplaat, combi-oven, vaatwasser
- Ruimte voorzien als technische berging, uitgerust voor wasmachine, droger en technische installaties. Centrale verwarming: Vaillant condensatieketel op gas
- Terras: 10,86 m2
Troeven:
- 2 slaapkamers
- 4 zonnepanelen voor een lagere energiefactuur
- Terras: vloer met keramische tegels
- Fietsenstalling
- Autostaanplaats
- Videofoon voor extra veiligheid
- Elektrisch bedienbare Velux-raam voor extra comfort en ventilatie
- Ventilatiesysteem voor een gezond binnenklimaat
- Het volledige appartement is uitgerust met vloerverwarming in alle ruimtes, wat zorgt voor een
energie-efficiënte warmteverdeling
Interesse? Neem contact op met Jurimex via het nummer 089/308 700 of info@jurimex.be voor een bezoek.
| Naam |
Immo Jurimex
|
| Prijs |
€ 940
|
| Maandelijkse lasten |
€ 40
|
Gelijkvloers
| Parkeerplaats |
|
| Fietsenberging |
|
Verdieping 1
| Inkomhal |
2,89 m²
|
| Badkamer |
6,03 m²
|
| Slaapkamer |
11,13 m²
|
| Slaapkamer |
7,76 m²
|
| Nachthal |
3,89 m²
|
Verdieping 2
| Toilet |
1,44 m²
|
| Keuken |
|
| Berging |
5,34 m²
|
| Woonkamer |
29,53 m²
|
| Terras |
10,86 m²
|
| Label |
|
| Bewoonbare opp. |
75 m²
|
| Aardgas |
Ja
|
| Elektriciteit |
Ja
|
| Videofoon |
Ja
|
| Vloerverwarming |
Ja
|
| Zonnepanelen |
Ja
|
| Beglazing |
Dubbele
|
| Keuken |
Geïnstalleerd
|
| Bouwjaar |
2025
|
| Algemene staat |
Nieuwe staat
|
| Bemeubeld |
Neen
|
| Lift |
Neen
|
| Stedenbouwkundige bestemming |
Woongebied
|
| Dagvaarding voor stedenbouwkundige overtreding |
Geen rechterlijke herstelmaatregel of bestuurlijke maatregel opgelegd
|
| Bouwvergunning |
Bouw vergund
|
| Verkavelingsvergunning |
Neen
|
| Voorkooprecht |
Neen
|
| As-built attest |
Neen
|
| Beschermd erfgoed |
Neen
|
| Renovatieplicht |
Niet van toepassing
|
Laten we de kosten berekenen
false
1.5%
20 jaar
EUR/maand